螺旋輸送機生產廠家 不挑物料,不挑場景,可非標定制


簡介:膠帶斗式提升機可提升各種粉狀、粒狀和塊狀(≤30mm)物料,物料溫度≤120℃.
適用物料:適用于垂直輸送粉狀、粒狀、及小塊狀的磨吸性較小的散狀物料
應用領域:建材、冶金、化工、糧食等行業
全國統一銷售熱線:


膠帶斗式提升機適用于垂直輸送粉狀、粒狀、及小塊狀的磨吸性較小的散狀物料,如糧食、煤、水泥、碎礦石等,提升高度不超過40m。TD型按JB3926-85《垂直斗式提升機》標準設計制造,目前國內常用的斗式提升機均為垂直式,較新型。膠帶斗式提升機備有四種料斗Q型(淺斗)、H型(弧底斗)、ZD型(中深斗)SD型(深斗)。


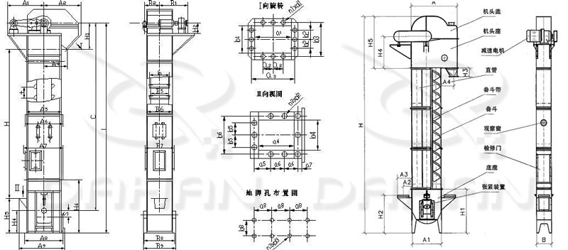
膠帶斗式提升機由運行部分(料斗與牽引膠帶),帶有傳動滾筒的上部區段,帶有拉緊滾筒的下部區段,中間機殼,驅動裝置,逆止制動裝置等組成,適用于向上輸送松散密度ρ<1.5t/m3粉狀、粒狀和小塊狀的無磨琢性和半磨琢性散狀物料,如煤、砂、焦末、水泥、碎礦石等。

膠帶斗式提升機結構形式:傳動裝置膠帶斗式提升機的傳動裝置有兩種形式分別配有YZ型減速器ZQ(或YY)型減速器。YZ型軸減速器直接裝在主軸軸頭上,省去了傳動平臺、聯軸器等,使結構緊湊、重量輕,而且其內部帶有異型輥逆止器,逆止可靠。該減速器噪音低,運轉平穩,并隨主軸浮動,可消除安裝應力。

1.驅動功率小,采用流入式喂料、誘導式卸料、大容量的料斗密集型布置,在物料提升時幾乎無回料和挖料現象,因此無效功率少。

2.提升范圍廣,這類提升機對物料的種類、特性要求少,不但能提升一般粉狀、小顆粒狀物料,而且可提升磨琢性較大的物料.密封性好,環境污染少。

3.運行可靠性好,先進的設計原理和加工方法,保證了整機運行的可靠性,無故障時間超過2萬小時。提升高度高,提升機運行平穩,因此可達到較高的提升高度。

4.使用壽命長,提升機的喂料采取流入式,無需用斗挖料,材料之間很少發生擠壓和碰撞現象。本機在設計時保證物料在喂料、卸料時少有撒落,減少了機械磨損。

|
型號 |
TD160 |
TD250 |
TD315 |
TD400 |
||||||||||||
|
料斗形式 |
Q |
H |
ZD |
SD |
Q |
H |
ZD |
SD |
Q |
H |
ZD |
SD |
Q |
H |
ZD |
SD |
|
輸送量(m3/h) |
5.4 |
9.6 |
9.6 |
16 |
12 |
22 |
23 |
35 |
17 |
30 |
25 |
40 |
24 |
46 |
41 |
66 |
|
斗寬(mm) |
160 |
250 |
315 |
400 |
||||||||||||
|
斗容(L) |
0.5 |
0.9 |
4.2 |
1.9 |
1.3 |
2.2 |
3.0 |
4.6 |
2 |
3.6 |
3.8 |
5.8 |
3.1 |
5.6 |
5.9 |
9.4 |
|
斗距(mm) |
280 |
350 |
360 |
450 |
400 |
500 |
480 |
560 |
||||||||
|
帶寬(mm) |
200 |
300 |
400 |
500 |
||||||||||||
|
斗速(m/s) |
1.4 |
1.6 |
1.6 |
1.8 |
||||||||||||
|
物料量大塊(mm) |
25 |
35 |
45 |
55 |
||||||||||||
|
型號 |
TD500 |
TD630 |
TD160 |
TD250 |
TD350 |
TD450 |
||||||||||
|
料斗形式 |
Q |
H |
ZD |
SD |
H |
ZD |
SD |
Q |
S |
Q |
S |
Q |
S |
Q |
S |
|
|
輸送量(m3/h) |
38 |
70 |
58 |
92 |
85 |
89 |
142 |
4.7 |
8 |
18 |
22 |
25 |
42 |
50 |
72 |
|
|
斗寬(mm) |
500 |
630 |
160 |
250 |
350 |
450 |
||||||||||
|
斗容(L) |
4.8 |
9 |
9.3 |
15 |
14 |
14.6 |
23.5 |
0.65 |
1.1 |
2.6 |
3.2 |
7 |
7.8 |
14.5 |
15 |
|
|
斗距(mm) |
500 |
625 |
710 |
300 |
400 |
500 |
640 |
|||||||||
|
帶寬(mm) |
600 |
700 |
200 |
300 |
400 |
500 |
||||||||||
|
斗速(m/s) |
1.8 |
2 |
1 |
1.25 |
1.25 |
1.25 |
||||||||||
|
物料量大塊(mm) |
60 |
70 |
25 |
35 |
45 |
55 |
||||||||||
說明:
1.表中斗容為計算斗容,輸送量按填充系數0.6計算得出。
2.斗提機料斗用途為:
淺料斗:輸送潮濕、易結塊、難拋出的物料。如濕沙、濕煤等。
深料斗:輸送干燥的、松散的、易拋出的物料。如水泥、煤塊、碎石、石英砂等。